「MAP」「ストリートビュー」イメージをクリックすると、詳細情報が別ウィンドウで表示されます。
※一戸建て・土地については、個人情報保護の観点から「周辺MAP」「周辺ストリートビュー」が表示されます。あらかじめご了承ください。
リナージュ川西市 霞ケ丘2丁目 新築一戸建て [物件ID] 000377897
- 仲介手数料半額以下
- 新築戸建
4,780万円
| 所在地 | 兵庫県川西市霞ケ丘2丁目 |
|---|---|
| 交通 | 阪急宝塚本線/川西能勢口駅 徒歩12分 |
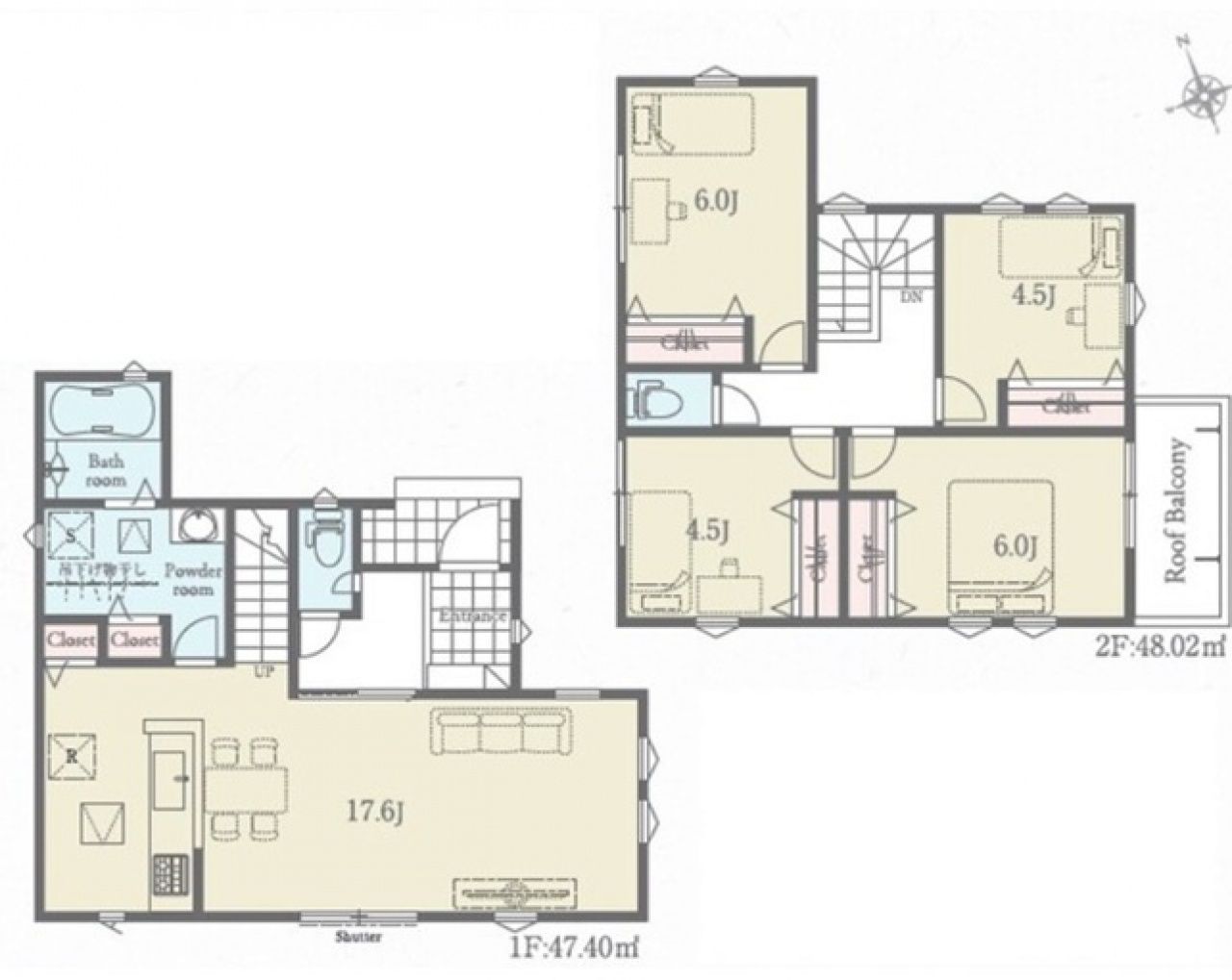
| 建物面積 | 95.42m2 |
| 土地面積 | 103.58m2 |
| 築年月 | 2025年11月(令和7年11月) |
| 間取り | 4LDK |
仲介手数料
半額以下
法定上限額
50%OFF
取引条件有効期限:
2025年12月29日
MAP・周辺環境
物件概要
| 所在地 | 兵庫県川西市霞ケ丘2丁目 | ||
|---|---|---|---|
| 交通 | 阪急宝塚本線/川西能勢口駅 徒歩12分 | ||
| 価格 | 4,780 万円 | ||
| 建物面積 | 95.42m2 | 土地面積 | 103.58m2 |
| 築年月 | 2025年11月(令和7年11月) | 階建(地上/地下) | --- 階 / --- 階 |
| 間取り | 4LDK | 構造 | 木造 |
| 販売戸数 | --- 戸 | 駐車場 | --- |
| 連棟式 | --- | ||
| 土地権利 | 所有権 | 地目 | 宅地 |
| 私道負担/私道面積 | --- | セットバック/距離/面積 | --- |
| 都市計画 | --- | 用途地域 | 一住 |
| 建ぺい率 | --- | 容積率 | --- |
| 接道状況 |
一方 方向:北東 種別:-- 幅員:3.3m 間口:-- |
||
| 設備 | --- | ||
| その他使用料 | --- | ||
| 現況 | --- | 引渡 | 相談 |
| 取引態様 | 仲介 | ||
| 開発許可番号 | --- | 建築確認番号 | --- |
| コメント |
価格・品質・安心という3つの価値がある家づくり ~LIGNAGE(リナージュ)シリーズ~ ■水回りや内装・外壁など、機能性豊かな設備を取り揃えているだけでなく、シンプル且つ使い勝手の良い設備が満載! ■毎日使う玄関ドア、簡単操作で安心も備えたスマートコントロールキー搭載! ■LOW-Eペアガラスは一般複層ガラスより「節電&エコ」「結露防止&保温効果アップ」! ☆カラーモニターインターホンで来客もひと目で確認安心です♪ ☆システムキッチン(浄水器内蔵・収納たっぷり・スライド式で使いやすい) ★安心の地盤調査済み物件 ★住宅性能評価書取得 ★地震に強い耐震等級3 ★安心の建物10年保証有 ★1区画分譲地です。 ★浴室暖房乾燥機付 ★駐車スペース1台 ※全ての現場で地盤調査を実施しております。 (スウェーデン式サウンディング調査) ※横揺れに強い「剛床工法」を採用 1階と2階の床に厚さ24mmの合板を敷く「剛床工法」を採用。土台と梁に直接留め付け、床を一つの面として一体化させることにより、 建物のねじれや変形を防ぎます。 横からの圧力にも非常に強く、台風や地震にも抜群の強度を発揮します。 ※床下全周換気工法・外壁内通気工法を採用 結露や断熱性低下の原因となる湿気や熱気を、基礎パッキンや換気棟などにより、床下・外壁内・小屋裏から排出。建材の劣化を防ぎ、 住まいの耐久性を高めます。また自然換気は温度差と気圧差を利用し、空気の給気および排気を行うため、換気扇などのメンテナンスも不要です。 ※最高レベルの建材を標準採用 フローリングなどの建材には、有害物質の発散を抑えたJIS・JAS、または国土交通大臣認定規格で定められている最高ランクF☆☆☆☆(フォースター)を採用し、 暮らす方の健康に配慮しています。 ※断熱性能にすぐれた住宅に 床・天井・壁の隙間に断熱材を入れることで、外部との断熱性・室内の保湿性を高め、快適な居住空間を保ちます。 ※地震に強い耐震金物を採用 Zマーク表示金物または同等認定品を使用し、耐震性を高めています。耐震接合金物を使用することにより、 建物にかかる応力を有効に伝達することができるため、安定した強固な構造体となります。 ●住宅性能表示制度のメリット ①品確法に基づく住宅性能評価書を取得すると、地震に対する強さの程度に応じた地震保険料の割引を受けることができます。 ②建設住宅性能評価書の交付を受けた住宅は、民間金融機関や公共団体の住宅ローンの優遇を受けられる場合があります。 住宅性能表示制度を利用した新築住宅で、一定の要件を満たすものについては、住宅金融支援機構提携フラット35に係る手続きの簡素化等を受けられます。 ③国の指定を受けた評価機関で一級建築士等の資格を持つプロが、第三者の立場でチェックします。 設計段階はもちろんのこと、工事の過程でも現場調査を4回に渡って実施しますので、手抜きなどにまつわる不安を解消します。 【担当者のコメント】★は、売出価格より約1割くらい、★★は売出価格より約2割くらい値下げがある物件で、お得感の指標です。 こちらの物件は、在庫回転率を重視する大手建売の分譲で、相場より大幅に下げて無理矢理売り切ることがあります。 当社スタッフと一緒に、お客様の新生活に相応しいマイホームを探して、人生をより豊かなものにしましょう。 当社ではお客様の希望条件をしっかりとお伺いし、条件がマッチした物件をご紹介するだけでなく、お客様自身の気づいていないニーズを汲み取り、よりピッタリと合う物件のご提案をさせていただいております。 又、地域に密着し、地域に特化した当社だからこそ取り扱える豊富な不動産情報もございます。 お気軽にご相談下さい。 ◇◆◇◆◇ご見学について◇◆◇◆◇ 完成物件はもちろん、建築中の物件でもご自由にご覧いただけます。 完成後ではなかなか見ることが出来ないしっかりとした構造躯体をご覧いただくことも可能です。 【定休日…火曜(隔週)・水曜日、営業時間…10:00から19:30まで 土日でも内覧可能です!】 ◆◆◆『ご案内の流れ』◆◆◆ 【1】スーモ・ホームズ・アットホーム・YAHOO不動産等の不動産専門ポータルサイト等 から気になる物件をピックアップ ↓ 【2】新築の場合、他社掲載の物件も当社でほとんどが取り扱い可能です。物件の状況を確認させていただきます。 ↓ 【3】ご案内の日時調整、待ち合わせ場所調整(現地集合) ↓ 【4】 現地案内 当社では、お客様に実際に物件をご覧頂くことをお勧めしております! ◆実際に物件をみることの利点◆ (1) 時間帯によって変化する環境(陽当たり・周辺交通量・音など) を実際にお家で体験して頂くことで、慎重にお家をお選び頂けます! (2) 実際にお家に入ることで、間取りだけでイメージしていたのとは、違いが あることを発見しましたというお客様が多いです! ↓ 【5】資金計画のご相談等 資金計画(諸費用)や住宅ローン(ローンが組めるかや毎月の支払いなど)、 当社は住宅ロ-ンに自信!『自己資金が無いけど、自営業なんだけど、所得が少ないけど、勤続年数が短いけど、契約社員なんだけど、母子家庭だけど、他に借入れがあるけど等』お気軽にご相談下さい。 1)新築専門サイト新築建売.comでは仲介手数料無料or半額の独自のサービスを実施しております。(新築建売限定) ★住宅ローン事務手数料(10万円)も無料です。 ★当社は仲介手数料以外の金銭を一切いただきません。 2)ローンの資金相談、ファイナンシャルプランナーとの資金相談も無料でご相談できます。(希望の方) 3)物件探しのポイント、知らないと損をする金利のことや不動産事情など丁寧にご説明させていただきます。 4)経験豊富なスタッフにより物件選びにおけるご提案の幅の広さから後悔しない住まい選びの実現、低価格で高品質なサービスを目指しております。 5)広告宣伝費などのコストを徹底的にカットし、資質と経験を兼ね備えた大手出身のベテランスタッフが少数精鋭でサービスの質を追求し、お客様に利益を還元しています。 ※新築物件のほとんどは当社で取り扱い可能です。 ※諸費用はどこでも同じではございません。 ※価格交渉もお客様のかわりに分譲会社に交渉させていただきます。 ●フラット35S利用可能物件とは? フラット35の技術基準に加え、耐震性、省エネルギー性などに優れた住宅を取得する場合に、一定期間フラット35の金利を引き下げてくれるのが「フラット35S」です。フラット35Sには「金利Aプラン」と「金利Bプラン」があります。 例えば、耐震等級3の住宅であれば「金利Aプラン」の利用ができ、耐震等級2以上の住宅であれば「金利Bプラン」が利用できるというように、建物の技術基準をどこまで満たしているかによって利用できるプランが異なります。 「金利Aプラン」の金利は当初10年間、フラット35の金利から0.25%引き下げ、「金利Bプラン」の金利は当初5年間0.25%の引き下げになります。 【耐震等級1】(建築基準法の耐震性能を満たす水準) ・数百年に一度程度の地震(震度6強から7程度)に対しても倒壊や崩壊しない ・数十年に一度発生する地震(震度5程度)は住宅が損傷しない程度 ※建築基準法ギリギリの設定の場合、倒壊はしないが、震度6~7程度の地震に対して損傷を受ける可能性があります。 【耐震等級2】 ・等級1で想定される1.25倍の地震が起きても耐えられる ※主に学校や病院などの耐震性能が等級2です。 【耐震等級3】★★★(対象不動産)★★★ ・等級1で想定される1.5倍の地震が起きても耐えられる ※主に消防署や警察署など防災の拠点となっている建物は等級3です。 |
||
| 更新日 | 2025年12月15日 | 次回更新予定日 | 2025年12月29日 |
物件情報と現況に差異がある場合、現況を優先します。
掲載物件は売却済み、売却中止、価格変更となる場合がありますので、予めご了承ください。
仲介物件には所定の仲介手数料(消費税含む)が必要です。
ローンシミュレーション
| 自己資金 |
※別途、諸費用が必要です。
|
|---|---|
| ローン借入額 |
|
| 内ボーナス時 支払い |
※ボーナス返済月の加算額ではありません。
※お借入れ予定額の50%以下の金額をご入力ください。 |
| 金利 |
|
| 返済年数 |
|
- 月々(毎月返済額)000,000円
- ボーナス(ボーナス時加算額)000,000円
取り扱い不動産会社
-
会社名 アーバン・サイエンス株式会社 所在地 〒564-0063
大阪府吹田市江坂町1丁目16番10号 メゾン江坂102交通 北大阪急行電鉄「江坂」駅徒歩3分
Osaka Metro御堂筋線「江坂」駅徒歩3分電話番号 06-6155-4980 免許番号 大阪府知事(1)第58984号 営業時間 --- 定休日 ---
アーバン・サイエンス株式会社が取り扱っている物件
Prefee会員登録
会員登録無料
会員マイページ
を作成新着物件を
メールでご紹介
- 会員登録後「物件紹介会社登録」で
- 希望条件に合う非公開物件をメールで個別紹介!
不動産流通市場には、売主様側の都合で一般公開が禁じられている物件が存在しており、Prefeeにも多数の非公開物件が登録されています。
非公開物件を取り扱う不動産会社を「物件紹介会社」として登録すると、希望条件に合う非公開物件がメールで個別紹介されます。
「物件紹介会社」を複数登録することで優良物件に巡り合うチャンスが広がります。





























~LIGNAGE(リナージュ)シリーズ~
■水回りや内装・外壁など、機能性豊かな設備を取り揃えているだけでなく、シンプル且つ使い勝手の良い設備が満載!
■毎日使う玄関ドア、簡単操作で安心も備えたスマートコントロールキー搭載!
■LOW-Eペアガラスは一般複層ガラスより「節電&エコ」「結露防止&保温効果アップ」!
☆カラーモニターインターホンで来客もひと目で確認安心です♪
☆システムキッチン(浄水器内蔵・収納たっぷり・スライド式で使いやすい)
★安心の地盤調査済み物件
★住宅性能評価書取得
★地震に強い耐震等級3
★安心の建物10年保証有
★1区画分譲地です。
★浴室暖房乾燥機付
★駐車スペース1台
※全ての現場で地盤調査を実施しております。
(スウェーデン式サウンディング調査)
※横揺れに強い「剛床工法」を採用
1階と2階の床に厚さ24mmの合板を敷く「剛床工法」を採用。土台と梁に直接留め付け、床を一つの面として一体化させることにより、
建物のねじれや変形を防ぎます。
横からの圧力にも非常に強く、台風や地震にも抜群の強度を発揮します。
※床下全周換気工法・外壁内通気工法を採用
結露や断熱性低下の原因となる湿気や熱気を、基礎パッキンや換気棟などにより、床下・外壁内・小屋裏から排出。建材の劣化を防ぎ、
住まいの耐久性を高めます。また自然換気は温度差と気圧差を利用し、空気の給気および排気を行うため、換気扇などのメンテナンスも不要です。
※最高レベルの建材を標準採用
フローリングなどの建材には、有害物質の発散を抑えたJIS・JAS、または国土交通大臣認定規格で定められている最高ランクF☆☆☆☆(フォースター)を採用し、
暮らす方の健康に配慮しています。
※断熱性能にすぐれた住宅に
床・天井・壁の隙間に断熱材を入れることで、外部との断熱性・室内の保湿性を高め、快適な居住空間を保ちます。
※地震に強い耐震金物を採用
Zマーク表示金物または同等認定品を使用し、耐震性を高めています。耐震接合金物を使用することにより、
建物にかかる応力を有効に伝達することができるため、安定した強固な構造体となります。
●住宅性能表示制度のメリット
①品確法に基づく住宅性能評価書を取得すると、地震に対する強さの程度に応じた地震保険料の割引を受けることができます。
②建設住宅性能評価書の交付を受けた住宅は、民間金融機関や公共団体の住宅ローンの優遇を受けられる場合があります。
住宅性能表示制度を利用した新築住宅で、一定の要件を満たすものについては、住宅金融支援機構提携フラット35に係る手続きの簡素化等を受けられます。
③国の指定を受けた評価機関で一級建築士等の資格を持つプロが、第三者の立場でチェックします。
設計段階はもちろんのこと、工事の過程でも現場調査を4回に渡って実施しますので、手抜きなどにまつわる不安を解消します。
【担当者のコメント】★は、売出価格より約1割くらい、★★は売出価格より約2割くらい値下げがある物件で、お得感の指標です。
こちらの物件は、在庫回転率を重視する大手建売の分譲で、相場より大幅に下げて無理矢理売り切ることがあります。
当社スタッフと一緒に、お客様の新生活に相応しいマイホームを探して、人生をより豊かなものにしましょう。
当社ではお客様の希望条件をしっかりとお伺いし、条件がマッチした物件をご紹介するだけでなく、お客様自身の気づいていないニーズを汲み取り、よりピッタリと合う物件のご提案をさせていただいております。
又、地域に密着し、地域に特化した当社だからこそ取り扱える豊富な不動産情報もございます。
お気軽にご相談下さい。
◇◆◇◆◇ご見学について◇◆◇◆◇
完成物件はもちろん、建築中の物件でもご自由にご覧いただけます。
完成後ではなかなか見ることが出来ないしっかりとした構造躯体をご覧いただくことも可能です。
【定休日…火曜(隔週)・水曜日、営業時間…10:00から19:30まで 土日でも内覧可能です!】
◆◆◆『ご案内の流れ』◆◆◆
【1】スーモ・ホームズ・アットホーム・YAHOO不動産等の不動産専門ポータルサイト等
から気になる物件をピックアップ
↓
【2】新築の場合、他社掲載の物件も当社でほとんどが取り扱い可能です。物件の状況を確認させていただきます。
↓
【3】ご案内の日時調整、待ち合わせ場所調整(現地集合)
↓
【4】 現地案内
当社では、お客様に実際に物件をご覧頂くことをお勧めしております!
◆実際に物件をみることの利点◆
(1) 時間帯によって変化する環境(陽当たり・周辺交通量・音など)
を実際にお家で体験して頂くことで、慎重にお家をお選び頂けます!
(2) 実際にお家に入ることで、間取りだけでイメージしていたのとは、違いが
あることを発見しましたというお客様が多いです!
↓
【5】資金計画のご相談等
資金計画(諸費用)や住宅ローン(ローンが組めるかや毎月の支払いなど)、
当社は住宅ロ-ンに自信!『自己資金が無いけど、自営業なんだけど、所得が少ないけど、勤続年数が短いけど、契約社員なんだけど、母子家庭だけど、他に借入れがあるけど等』お気軽にご相談下さい。
1)新築専門サイト新築建売.comでは仲介手数料無料or半額の独自のサービスを実施しております。(新築建売限定)
★住宅ローン事務手数料(10万円)も無料です。
★当社は仲介手数料以外の金銭を一切いただきません。
2)ローンの資金相談、ファイナンシャルプランナーとの資金相談も無料でご相談できます。(希望の方)
3)物件探しのポイント、知らないと損をする金利のことや不動産事情など丁寧にご説明させていただきます。
4)経験豊富なスタッフにより物件選びにおけるご提案の幅の広さから後悔しない住まい選びの実現、低価格で高品質なサービスを目指しております。
5)広告宣伝費などのコストを徹底的にカットし、資質と経験を兼ね備えた大手出身のベテランスタッフが少数精鋭でサービスの質を追求し、お客様に利益を還元しています。
※新築物件のほとんどは当社で取り扱い可能です。
※諸費用はどこでも同じではございません。
※価格交渉もお客様のかわりに分譲会社に交渉させていただきます。
●フラット35S利用可能物件とは?
フラット35の技術基準に加え、耐震性、省エネルギー性などに優れた住宅を取得する場合に、一定期間フラット35の金利を引き下げてくれるのが「フラット35S」です。フラット35Sには「金利Aプラン」と「金利Bプラン」があります。
例えば、耐震等級3の住宅であれば「金利Aプラン」の利用ができ、耐震等級2以上の住宅であれば「金利Bプラン」が利用できるというように、建物の技術基準をどこまで満たしているかによって利用できるプランが異なります。
「金利Aプラン」の金利は当初10年間、フラット35の金利から0.25%引き下げ、「金利Bプラン」の金利は当初5年間0.25%の引き下げになります。
【耐震等級1】(建築基準法の耐震性能を満たす水準)
・数百年に一度程度の地震(震度6強から7程度)に対しても倒壊や崩壊しない
・数十年に一度発生する地震(震度5程度)は住宅が損傷しない程度
※建築基準法ギリギリの設定の場合、倒壊はしないが、震度6~7程度の地震に対して損傷を受ける可能性があります。
【耐震等級2】
・等級1で想定される1.25倍の地震が起きても耐えられる
※主に学校や病院などの耐震性能が等級2です。
【耐震等級3】★★★(対象不動産)★★★
・等級1で想定される1.5倍の地震が起きても耐えられる
※主に消防署や警察署など防災の拠点となっている建物は等級3です。