「MAP」「ストリートビュー」イメージをクリックすると、詳細情報が別ウィンドウで表示されます。
※一戸建て・土地については、個人情報保護の観点から「周辺MAP」「周辺ストリートビュー」が表示されます。あらかじめご了承ください。
クレイドルガーデン枚方市 香里園山之手町 新築一戸建て3期3棟1号棟 [物件ID] 000375882
- 仲介手数料半額以下
- 新築戸建
| 所在地 | 大阪府枚方市香里園山之手町 |
|---|---|
| 交通 | 京阪本線/香里園駅 徒歩13分 |
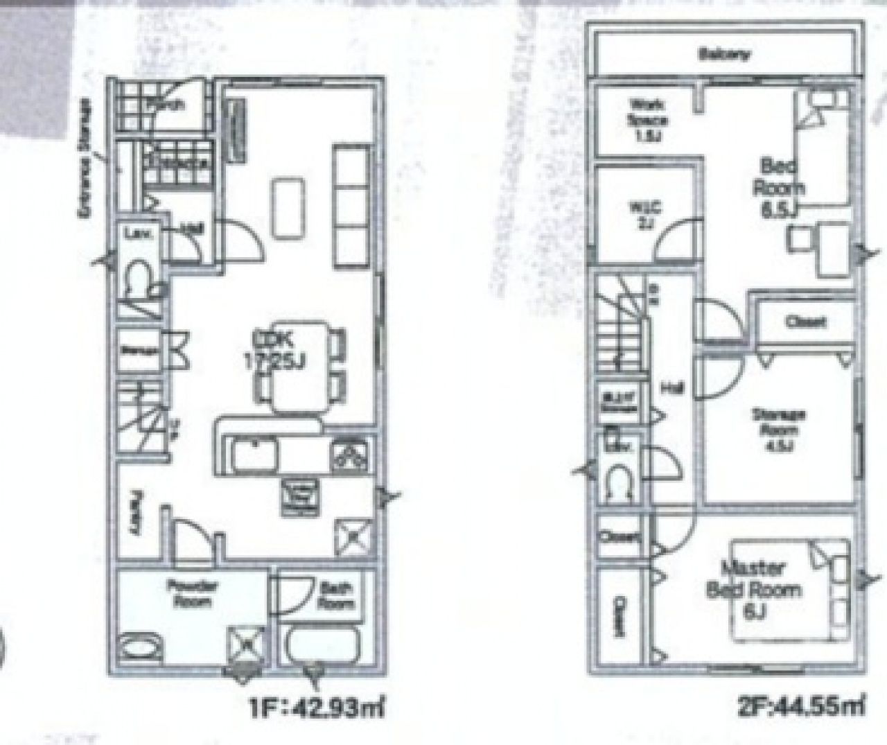
| 建物面積 | 87.48m2 |
| 土地面積 | 91.19m2 |
| 築年月 | 2025年10月(令和7年10月) |
| 間取り | 3LDK |
仲介手数料
半額以下
法定上限額
50%OFF
- 低層住居専用地域
- 新耐震基準
| 所在地 | 大阪府枚方市香里園山之手町 | ||
|---|---|---|---|
| 交通 | 京阪本線/香里園駅 徒歩13分 | ||
| 価格 | 3,280 万円 | ||
| 建物面積 | 87.48m2 | 土地面積 | 91.19m2 |
| 築年月 | 2025年10月(令和7年10月) | 階建(地上/地下) | 2 階 / --- 階 |
| 間取り | 3LDK | 構造 | 木造 |
| 販売戸数 | 2 戸 | 駐車場 | --- |
| 連棟式 | --- | ||
| 土地権利 | 所有権 | 地目 | --- |
| 私道負担/私道面積 | --- | セットバック/距離/面積 | --- |
| 都市計画 | --- | 用途地域 | 一低 |
| 建ぺい率 | --- | 容積率 | --- |
| 接道状況 |
一方 方向:北 種別:-- 幅員:4m 間口:-- |
||
| 設備 | --- | ||
| その他使用料 | --- | ||
| 現況 | --- | 引渡 | 相談 |
| 取引態様 | 仲介 | ||
| 開発許可番号 | --- | 建築確認番号 | --- |
| コメント |
◎ゆとりの広さで家事のしやすい間取りプラン!! 地震の揺れを吸収する「クワイエ」による建物で、地震に強く安心の一戸建てです♪ 地震の揺れに耐える「耐震性能」と、揺れを抑えて住宅へのダメージを軽減する「制震性能」を兼ね備えた建売住宅ブランド「QUIE」 ■耐震 + 制震の家、QUIE(クワイエ)。 ■SAFE365で地震の揺れを吸収する家 ★安心の地盤調査済み物件 ★フラット35S利用可能物件 ★住宅性能表示付き ★建物10年保証有 ★3区画分譲地です。 ★ペアガラス標準装備 ★浴室暖房乾燥機付 ★駐車スペース2台 ※全ての現場で地盤調査を実施しております。 (スウェーデン式サウンディング調査) ※耐力面材ダイライトは高強度、高耐久性、防火性、寸法安定性、透湿性のある建材で、地震・台風・火災から家族と住まいを守ります。 耐力壁に使われる耐力面材ダイライト(壁の外に貼る板)は優れた性能を持ちますが、釘がめり込みすぎてしまうと強度が出ないため、 その効果を最大限に引き出すため、独自で実験・研究を行い、ダイライトの強度が落ちない施工方法を開発。 ※複層ガラスを標準採用しており、断熱効果を高めます。 ※グラスウール断熱材はキレイに貼れないと断熱効果が落ちたり、結露で家にダメージを与えてしまう可能性あるので、ガラス繊維協会の実践するマイスター認定の取得を奨励し、 グラスウール断熱材の断熱効果を発揮するためにガラス繊維協会マイスター認定者による施工です。マイスターが貼ると、断熱効果が違います。 ※工場で建築資材を製造するフルプレカットを採用。一棟一棟微妙に異なる資材までも、できる限りプレカットすることで住宅品質の均一化を図っています。 技量によるばらつきが生じやすい下駄箱や床下収納などの家具も工場で組み立てまで行ってから納品し、現場での作業負担を軽減すると同時に高い内装品質を実現しています。 まさに、ファクトリーメイドの家が、アーネストワンの家。また、従来「上棟作業」から「内装工事」までを同一の大工さんが施工する方法が一般的でしたが、分業化。 建前工事までは「上棟専門の大工チーム(フレーマー)」が一括対応し、内装は各戸担当の大工さんが仕上げる分業化を徹底しています。 それぞれの担当が専門的に作業行うことで、効率化と熟練度の向上を図っています。 ※木を傷めにくい、耐震性を高める金物を開発。 「家を支える構造体(材木)を傷つけない」というポリシーに則って、さまざまな結合金物にも工夫を凝らしています。たとえば羽子板ボルトを止めるスリーク座付きナット。 これは通常のように座彫りを深く削るのと比較して、木にめり込ませることで、構造体を傷めにくくなります。また、金物屋の「カナイ」と協力して作ったデフコーナー。 元々はL型だったものを斜めにすることで耐震強度がアップすることが発見されております。 ※通常の木造住宅のベタ基礎工事においては、13mm鉄筋が多く使われます。 しかし、自主基準として全戸の基礎の主筋に16mm鉄筋を採用しております。16mm鉄筋を用いて子会社アーネストウイング社によって生産されるユニット鉄筋を使用した基礎は、 強度比較試験において建築基準法で定められた配筋による基礎の強度を大きく上回っています。 ■□■制震装置(SAFE365)の優れた特長■□■ 地震の揺れを抑え、耐震性能を維持。 木造住宅の弱点は、ある程度の耐震構造を持っていても中規模地震(震度5弱程度)の揺れを繰り返し受けるとその耐震性能を弱めてしまうことにあります。 住宅の持っている、もともとの耐震性能を維持していくために重要な役割を果たすのが制震装置です。共同開発の制震装置SAFE365は、粘弾性素材を活用したもの。 この素材は高層ビルの制震装置にも使われており、優れた地震エネルギーの吸収を実現(震度6強を最大67%低減)。 さらに、最大震度6強クラスとなる120秒間続く地震を約200回受けても制震性能は衰えないと実証実験で分かっています。 ●住宅性能表示制度のメリット ①品確法に基づく住宅性能評価書を取得すると、地震に対する強さの程度に応じた地震保険料の割引を受けることができます。 ②建設住宅性能評価書の交付を受けた住宅は、民間金融機関や公共団体の住宅ローンの優遇を受けられる場合があります。 住宅性能表示制度を利用した新築住宅で、一定の要件を満たすものについては、住宅金融支援機構提携フラット35に係る手続きの簡素化等を受けられます。 ③国の指定を受けた評価機関で一級建築士等の資格を持つプロが、第三者の立場でチェックします。 設計段階はもちろんのこと、工事の過程でも現場調査を4回に渡って実施しますので、手抜きなどにまつわる不安を解消します。 【担当者のコメント】★は、売出価格より約1割くらい、★★は売出価格より約2割くらい値下げがある物件で、お得感の指標です。 こちらの物件は、在庫回転率を重視する大手建売の分譲で、相場より大幅に下げて無理矢理売り切ることがあります。 当社スタッフと一緒に、お客様の新生活に相応しいマイホームを探して、人生をより豊かなものにしましょう。 当社ではお客様の希望条件をしっかりとお伺いし、条件がマッチした物件をご紹介するだけでなく、お客様自身の気づいていないニーズを汲み取り、よりピッタリと合う物件のご提案をさせていただいております。 又、地域に密着し、地域に特化した当社だからこそ取り扱える豊富な不動産情報もございます。 お気軽にご相談下さい。 ◇◆◇◆◇ご見学について◇◆◇◆◇ 完成物件はもちろん、建築中の物件でもご自由にご覧いただけます。 完成後ではなかなか見ることが出来ないしっかりとした構造躯体をご覧いただくことも可能です。 【定休日…火曜(隔週)・水曜日、営業時間…10:00から19:30まで 土日でも内覧可能です!】 ◆◆◆『ご案内の流れ』◆◆◆ 【1】スーモ・ホームズ・アットホーム・YAHOO不動産等の不動産専門ポータルサイト等 から気になる物件をピックアップ ↓ 【2】新築の場合、他社掲載の物件も当社でほとんどが取り扱い可能です。物件の状況を確認させていただきます。 ↓ 【3】ご案内の日時調整、待ち合わせ場所調整(現地集合) ↓ 【4】 現地案内 当社では、お客様に実際に物件をご覧頂くことをお勧めしております! ◆実際に物件をみることの利点◆ (1) 時間帯によって変化する環境(陽当たり・周辺交通量・音など) を実際にお家で体験して頂くことで、慎重にお家をお選び頂けます! (2) 実際にお家に入ることで、間取りだけでイメージしていたのとは、違いが あることを発見しましたというお客様が多いです! ↓ 【5】資金計画のご相談等 資金計画(諸費用)や住宅ローン(ローンが組めるかや毎月の支払いなど)、 当社は住宅ロ-ンに自信!『自己資金が無いけど、自営業なんだけど、所得が少ないけど、勤続年数が短いけど、契約社員なんだけど、母子家庭だけど、他に借入れがあるけど等』お気軽にご相談下さい。 1)新築専門サイト新築建売.comでは仲介手数料無料or半額の独自のサービスを実施しております。(新築建売限定) ★住宅ローン事務手数料(10万円)も無料です。 ★当社は仲介手数料以外の金銭を一切いただきません。 2)ローンの資金相談、ファイナンシャルプランナーとの資金相談も無料でご相談できます。(希望の方) 3)物件探しのポイント、知らないと損をする金利のことや不動産事情など丁寧にご説明させていただきます。 4)経験豊富なスタッフにより物件選びにおけるご提案の幅の広さから後悔しない住まい選びの実現、低価格で高品質なサービスを目指しております。 5)広告宣伝費などのコストを徹底的にカットし、資質と経験を兼ね備えた大手出身のベテランスタッフが少数精鋭でサービスの質を追求し、お客様に利益を還元しています。 ※新築物件のほとんどは当社で取り扱い可能です。 ※諸費用はどこでも同じではございません。 ※価格交渉もお客様のかわりに分譲会社に交渉させていただきます。 ●フラット35S利用可能物件とは? フラット35の技術基準に加え、耐震性、省エネルギー性などに優れた住宅を取得する場合に、一定期間フラット35の金利を引き下げてくれるのが「フラット35S」です。フラット35Sには「金利Aプラン」と「金利Bプラン」があります。 例えば、耐震等級3の住宅であれば「金利Aプラン」の利用ができ、耐震等級2以上の住宅であれば「金利Bプラン」が利用できるというように、建物の技術基準をどこまで満たしているかによって利用できるプランが異なります。 「金利Aプラン」の金利は当初10年間、フラット35の金利から0.25%引き下げ、「金利Bプラン」の金利は当初5年間0.25%の引き下げになります。 【耐震等級1】(建築基準法の耐震性能を満たす水準) ・数百年に一度程度の地震(震度6強から7程度)に対しても倒壊や崩壊しない ・数十年に一度発生する地震(震度5程度)は住宅が損傷しない程度 ※建築基準法ギリギリの設定の場合、倒壊はしないが、震度6~7程度の地震に対して損傷を受ける可能性があります。 【耐震等級2】 ・等級1で想定される1.25倍の地震が起きても耐えられる ※主に学校や病院などの耐震性能が等級2です。 【耐震等級3】★★★(対象不動産)★★★ ・等級1で想定される1.5倍の地震が起きても耐えられる ※主に消防署や警察署など防災の拠点となっている建物は等級3です。 |
||
| 更新日 | 2025年11月17日 | 次回更新予定日 | 2025年12月01日 |
物件情報と現況に差異がある場合、現況を優先します。
掲載物件は売却済み、売却中止、価格変更となる場合がありますので、予めご了承ください。
仲介物件には所定の仲介手数料(消費税含む)が必要です。
| 自己資金 |
※別途、諸費用が必要です。
|
|---|---|
| ローン借入額 |
|
| 内ボーナス時 支払い |
※ボーナス返済月の加算額ではありません。
※お借入れ予定額の50%以下の金額をご入力ください。 |
| 金利 |
|
| 返済年数 |
|
- 月々(毎月返済額)000,000円
- ボーナス(ボーナス時加算額)000,000円
-
会社名 アーバン・サイエンス株式会社 所在地 〒564-0063
大阪府吹田市江坂町1丁目16番10号 メゾン江坂102交通 北大阪急行電鉄「江坂」駅徒歩3分
Osaka Metro御堂筋線「江坂」駅徒歩3分電話番号 06-6155-4980 免許番号 大阪府知事(1)第58984号 営業時間 --- 定休日 ---
会員登録無料
会員マイページ
を作成新着物件を
メールでご紹介
- 会員登録後「物件紹介会社登録」で
- 希望条件に合う非公開物件をメールで個別紹介!
不動産流通市場には、売主様側の都合で一般公開が禁じられている物件が存在しており、Prefeeにも多数の非公開物件が登録されています。
非公開物件を取り扱う不動産会社を「物件紹介会社」として登録すると、希望条件に合う非公開物件がメールで個別紹介されます。
「物件紹介会社」を複数登録することで優良物件に巡り合うチャンスが広がります。































地震の揺れを吸収する「クワイエ」による建物で、地震に強く安心の一戸建てです♪
地震の揺れに耐える「耐震性能」と、揺れを抑えて住宅へのダメージを軽減する「制震性能」を兼ね備えた建売住宅ブランド「QUIE」
■耐震 + 制震の家、QUIE(クワイエ)。
■SAFE365で地震の揺れを吸収する家
★安心の地盤調査済み物件
★フラット35S利用可能物件
★住宅性能表示付き
★建物10年保証有
★3区画分譲地です。
★ペアガラス標準装備
★浴室暖房乾燥機付
★駐車スペース2台
※全ての現場で地盤調査を実施しております。
(スウェーデン式サウンディング調査)
※耐力面材ダイライトは高強度、高耐久性、防火性、寸法安定性、透湿性のある建材で、地震・台風・火災から家族と住まいを守ります。
耐力壁に使われる耐力面材ダイライト(壁の外に貼る板)は優れた性能を持ちますが、釘がめり込みすぎてしまうと強度が出ないため、
その効果を最大限に引き出すため、独自で実験・研究を行い、ダイライトの強度が落ちない施工方法を開発。
※複層ガラスを標準採用しており、断熱効果を高めます。
※グラスウール断熱材はキレイに貼れないと断熱効果が落ちたり、結露で家にダメージを与えてしまう可能性あるので、ガラス繊維協会の実践するマイスター認定の取得を奨励し、
グラスウール断熱材の断熱効果を発揮するためにガラス繊維協会マイスター認定者による施工です。マイスターが貼ると、断熱効果が違います。
※工場で建築資材を製造するフルプレカットを採用。一棟一棟微妙に異なる資材までも、できる限りプレカットすることで住宅品質の均一化を図っています。
技量によるばらつきが生じやすい下駄箱や床下収納などの家具も工場で組み立てまで行ってから納品し、現場での作業負担を軽減すると同時に高い内装品質を実現しています。
まさに、ファクトリーメイドの家が、アーネストワンの家。また、従来「上棟作業」から「内装工事」までを同一の大工さんが施工する方法が一般的でしたが、分業化。
建前工事までは「上棟専門の大工チーム(フレーマー)」が一括対応し、内装は各戸担当の大工さんが仕上げる分業化を徹底しています。
それぞれの担当が専門的に作業行うことで、効率化と熟練度の向上を図っています。
※木を傷めにくい、耐震性を高める金物を開発。
「家を支える構造体(材木)を傷つけない」というポリシーに則って、さまざまな結合金物にも工夫を凝らしています。たとえば羽子板ボルトを止めるスリーク座付きナット。
これは通常のように座彫りを深く削るのと比較して、木にめり込ませることで、構造体を傷めにくくなります。また、金物屋の「カナイ」と協力して作ったデフコーナー。
元々はL型だったものを斜めにすることで耐震強度がアップすることが発見されております。
※通常の木造住宅のベタ基礎工事においては、13mm鉄筋が多く使われます。
しかし、自主基準として全戸の基礎の主筋に16mm鉄筋を採用しております。16mm鉄筋を用いて子会社アーネストウイング社によって生産されるユニット鉄筋を使用した基礎は、
強度比較試験において建築基準法で定められた配筋による基礎の強度を大きく上回っています。
■□■制震装置(SAFE365)の優れた特長■□■
地震の揺れを抑え、耐震性能を維持。
木造住宅の弱点は、ある程度の耐震構造を持っていても中規模地震(震度5弱程度)の揺れを繰り返し受けるとその耐震性能を弱めてしまうことにあります。
住宅の持っている、もともとの耐震性能を維持していくために重要な役割を果たすのが制震装置です。共同開発の制震装置SAFE365は、粘弾性素材を活用したもの。
この素材は高層ビルの制震装置にも使われており、優れた地震エネルギーの吸収を実現(震度6強を最大67%低減)。
さらに、最大震度6強クラスとなる120秒間続く地震を約200回受けても制震性能は衰えないと実証実験で分かっています。
●住宅性能表示制度のメリット
①品確法に基づく住宅性能評価書を取得すると、地震に対する強さの程度に応じた地震保険料の割引を受けることができます。
②建設住宅性能評価書の交付を受けた住宅は、民間金融機関や公共団体の住宅ローンの優遇を受けられる場合があります。
住宅性能表示制度を利用した新築住宅で、一定の要件を満たすものについては、住宅金融支援機構提携フラット35に係る手続きの簡素化等を受けられます。
③国の指定を受けた評価機関で一級建築士等の資格を持つプロが、第三者の立場でチェックします。
設計段階はもちろんのこと、工事の過程でも現場調査を4回に渡って実施しますので、手抜きなどにまつわる不安を解消します。
【担当者のコメント】★は、売出価格より約1割くらい、★★は売出価格より約2割くらい値下げがある物件で、お得感の指標です。
こちらの物件は、在庫回転率を重視する大手建売の分譲で、相場より大幅に下げて無理矢理売り切ることがあります。
当社スタッフと一緒に、お客様の新生活に相応しいマイホームを探して、人生をより豊かなものにしましょう。
当社ではお客様の希望条件をしっかりとお伺いし、条件がマッチした物件をご紹介するだけでなく、お客様自身の気づいていないニーズを汲み取り、よりピッタリと合う物件のご提案をさせていただいております。
又、地域に密着し、地域に特化した当社だからこそ取り扱える豊富な不動産情報もございます。
お気軽にご相談下さい。
◇◆◇◆◇ご見学について◇◆◇◆◇
完成物件はもちろん、建築中の物件でもご自由にご覧いただけます。
完成後ではなかなか見ることが出来ないしっかりとした構造躯体をご覧いただくことも可能です。
【定休日…火曜(隔週)・水曜日、営業時間…10:00から19:30まで 土日でも内覧可能です!】
◆◆◆『ご案内の流れ』◆◆◆
【1】スーモ・ホームズ・アットホーム・YAHOO不動産等の不動産専門ポータルサイト等
から気になる物件をピックアップ
↓
【2】新築の場合、他社掲載の物件も当社でほとんどが取り扱い可能です。物件の状況を確認させていただきます。
↓
【3】ご案内の日時調整、待ち合わせ場所調整(現地集合)
↓
【4】 現地案内
当社では、お客様に実際に物件をご覧頂くことをお勧めしております!
◆実際に物件をみることの利点◆
(1) 時間帯によって変化する環境(陽当たり・周辺交通量・音など)
を実際にお家で体験して頂くことで、慎重にお家をお選び頂けます!
(2) 実際にお家に入ることで、間取りだけでイメージしていたのとは、違いが
あることを発見しましたというお客様が多いです!
↓
【5】資金計画のご相談等
資金計画(諸費用)や住宅ローン(ローンが組めるかや毎月の支払いなど)、
当社は住宅ロ-ンに自信!『自己資金が無いけど、自営業なんだけど、所得が少ないけど、勤続年数が短いけど、契約社員なんだけど、母子家庭だけど、他に借入れがあるけど等』お気軽にご相談下さい。
1)新築専門サイト新築建売.comでは仲介手数料無料or半額の独自のサービスを実施しております。(新築建売限定)
★住宅ローン事務手数料(10万円)も無料です。
★当社は仲介手数料以外の金銭を一切いただきません。
2)ローンの資金相談、ファイナンシャルプランナーとの資金相談も無料でご相談できます。(希望の方)
3)物件探しのポイント、知らないと損をする金利のことや不動産事情など丁寧にご説明させていただきます。
4)経験豊富なスタッフにより物件選びにおけるご提案の幅の広さから後悔しない住まい選びの実現、低価格で高品質なサービスを目指しております。
5)広告宣伝費などのコストを徹底的にカットし、資質と経験を兼ね備えた大手出身のベテランスタッフが少数精鋭でサービスの質を追求し、お客様に利益を還元しています。
※新築物件のほとんどは当社で取り扱い可能です。
※諸費用はどこでも同じではございません。
※価格交渉もお客様のかわりに分譲会社に交渉させていただきます。
●フラット35S利用可能物件とは?
フラット35の技術基準に加え、耐震性、省エネルギー性などに優れた住宅を取得する場合に、一定期間フラット35の金利を引き下げてくれるのが「フラット35S」です。フラット35Sには「金利Aプラン」と「金利Bプラン」があります。
例えば、耐震等級3の住宅であれば「金利Aプラン」の利用ができ、耐震等級2以上の住宅であれば「金利Bプラン」が利用できるというように、建物の技術基準をどこまで満たしているかによって利用できるプランが異なります。
「金利Aプラン」の金利は当初10年間、フラット35の金利から0.25%引き下げ、「金利Bプラン」の金利は当初5年間0.25%の引き下げになります。
【耐震等級1】(建築基準法の耐震性能を満たす水準)
・数百年に一度程度の地震(震度6強から7程度)に対しても倒壊や崩壊しない
・数十年に一度発生する地震(震度5程度)は住宅が損傷しない程度
※建築基準法ギリギリの設定の場合、倒壊はしないが、震度6~7程度の地震に対して損傷を受ける可能性があります。
【耐震等級2】
・等級1で想定される1.25倍の地震が起きても耐えられる
※主に学校や病院などの耐震性能が等級2です。
【耐震等級3】★★★(対象不動産)★★★
・等級1で想定される1.5倍の地震が起きても耐えられる
※主に消防署や警察署など防災の拠点となっている建物は等級3です。